42116 Orange Blossom

Temecula, CA 92591

$ 645,000

Price

3

Beds

2.5

Baths

1,629 Sq. Ft.

$396 / Sq. Ft.

59 Days On Market

Favorite

Share

Laurel Creek Community

Have You Been Pre-Qualified? Start Now

Listing provided by agent Eddy Sandoval BRE# 01980777 at S.D.S Realty & Property Manage.

Last Updated: 25 days ago

Welcome to your new home in the calm and peaceful Laurel Creel Community. Short drive from Central Temecula. Quick access to Shopping, top-rated schools, dining options, wineries, night life and more. This Beautiful Home features a bright color scheme with an open layout, new LVP flooring downstairs a fireplace in the Living Room, Quartz kitchen counter tops with white cabinets. A spacious backyard with a pergola patio cover and paved back yard for easy maintenance. Upstairs features (3) nice sized bedrooms with well maintained carpet. Hallway is new LVP flooring. Garage is spacious for (2) vehicles, with epoxy floors. This home has solar panels to help with rising electricity costs. This home is in great condition. Laurel Creek amenities include: pool, hot tub/spa, BBQ area, Fire pits, Outdoor cooking area, playgrounds and more. Enjoy convenience and peaceful living at this home.

Show More
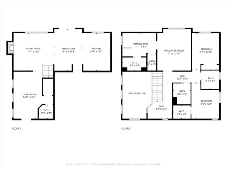
Property Type Single Family Residence
Lot Size 3,484 sq. ft.
Year Built 2000
MLS # SW25228236
Listing Type Active
Heating Central
Cooling Central Air
Laundry Gas Dryer Hookup, Inside, Washer Hookup

Payment Calculator

40% Complete (success)
80% Complete (danger)
20% Complete
80% Complete (danger)
60% Complete (warning)
Principal and Interest
Property Taxes
Homeowners' Insurance
HOA Dues
Mortgage Insurance
Image Calculator Icon Customize Calculations | Compare Mortgage Rates

Property Details for: 42116 Orange Blossom

Interior Features

Bathroom Information
  • 2 full baths, 1 half bath
Laundry Information
  • Gas Dryer Hookup
  • Inside
  • Washer Hookup
Fireplace Information
  • Family Room
Heating & Cooling
  • Central Air
  • Central

Parking / Garage, Multi-Unit Information, Location Details

Community Features
  • Units in Complex (Total) 141

Exterior Features

Property / Lot Details

Lot Information
  • Lot Size (Sq. Ft) 3,484
Property Information
  • Tax Parcel Number: 921371021

Recently Sold Homes Near 42116 Orange Blossom

Nearby Businesses

  • Grocery Stores
  • Drug Stores
  • Coffee Shops
  • Restaurants
  • Health & Medical
  • Fitness & Activity
  • Arts & Entertainment
  • Nightlife & Bars
    Browse all businesses in Temecula, CA, 92591

    Tour This Home

    MONDAY

    1

    DEC

    TUESDAY

    2

    DEC

    WEDNESDAY

    3

    DEC

    THURSDAY

    4

    DEC

    FRIDAY

    5

    DEC

    SATURDAY

    6

    DEC

    SUNDAY

    7

    DEC

    Schedule A Tour
    Tom Bashe, Broker Associate

    Tom Bashe

    Broker Associate

    951-501-2455 Contact Tom Bashe
    Listing provided by agent Eddy Sandoval BRE# 01980777 at S.D.S Realty & Property Manage.

    Last Updated: 25 days ago

    Similar Homes For Sale

    For Sale

    $ 615,000

    3 beds, 2.5 baths, 1,442 sq.ft.

    42156 Chestnut Drive ...
    View All 64 Homes